25/12/2024
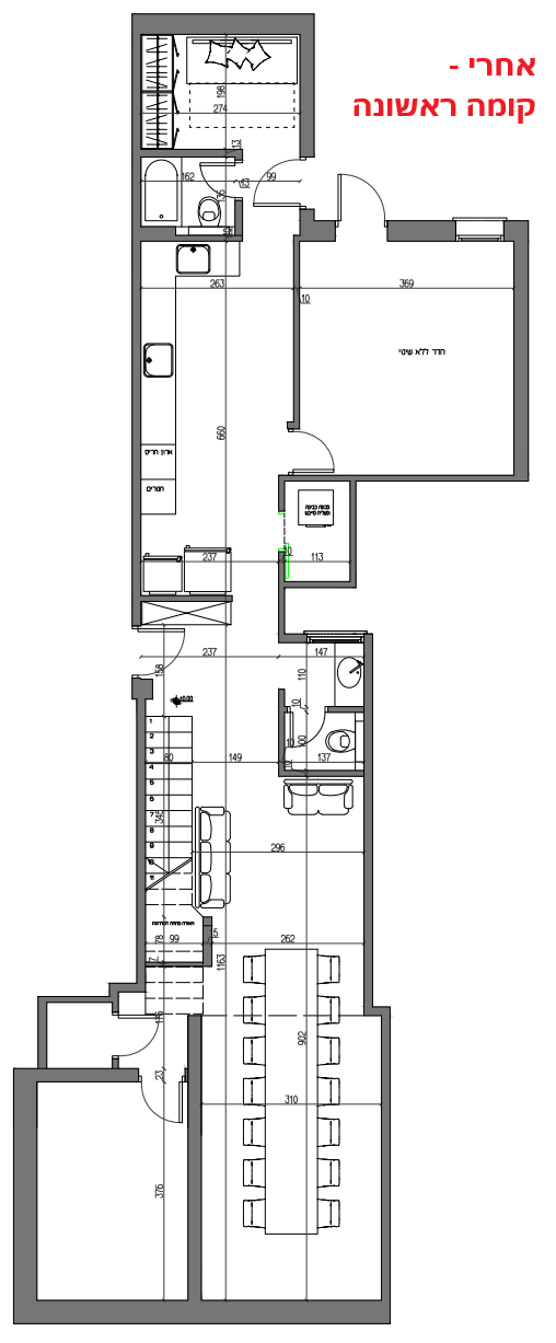
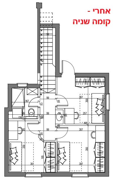
משפחה ברוכת ילדים, חיה בטוב ובנעימים בדירת 4 חדרים. כמו שכולנו מרגישים, הזמן טס...... ודירה מרווחת כמו זו שהם גרו בה, והספיקה להם בהחלט באותו הזמן מהר מאד תהיה צרה מלהכיל הילדים הגדלים והחתונות הקרבות גרמו להם לבצע שינוי וזה מה שהוחלט: הגדלת הסלון על חשבון המטבח הצמוד שיוכל להכיל פינת ישיבה נעימה ושולחן ארוך מרובה מסובים העברת המטבח לאחד מחדרי השינה וכמובן שיכיל גם פינת אוכל לימות החול תוספת שרותי אורחים, חדר רחצה וחדר כביסה הם חיוניים למשפחה ברוכה כמו זו שלהם ותוספת קומה על הגג הכוללת 3 חדרי שינה וחדר רחצה מרווח


